Dokumente und Unterlagen

Zerlegungsplan

Die Grundstücke sind aktuell (Stand August 2024) im Grundbuch noch als 2 große Flurstücke eingetragen.

Nach dem Kauf werden anhand des Zerlegungsplan entsprechend die Parzellen in das Grundbuch eingetragen.

Den Zerlegungsplan können Sie hier als PDF herunterladen.

Bücher für die Gäste - Bio Urlaub auf Gut Nisdorf an der Ostsee

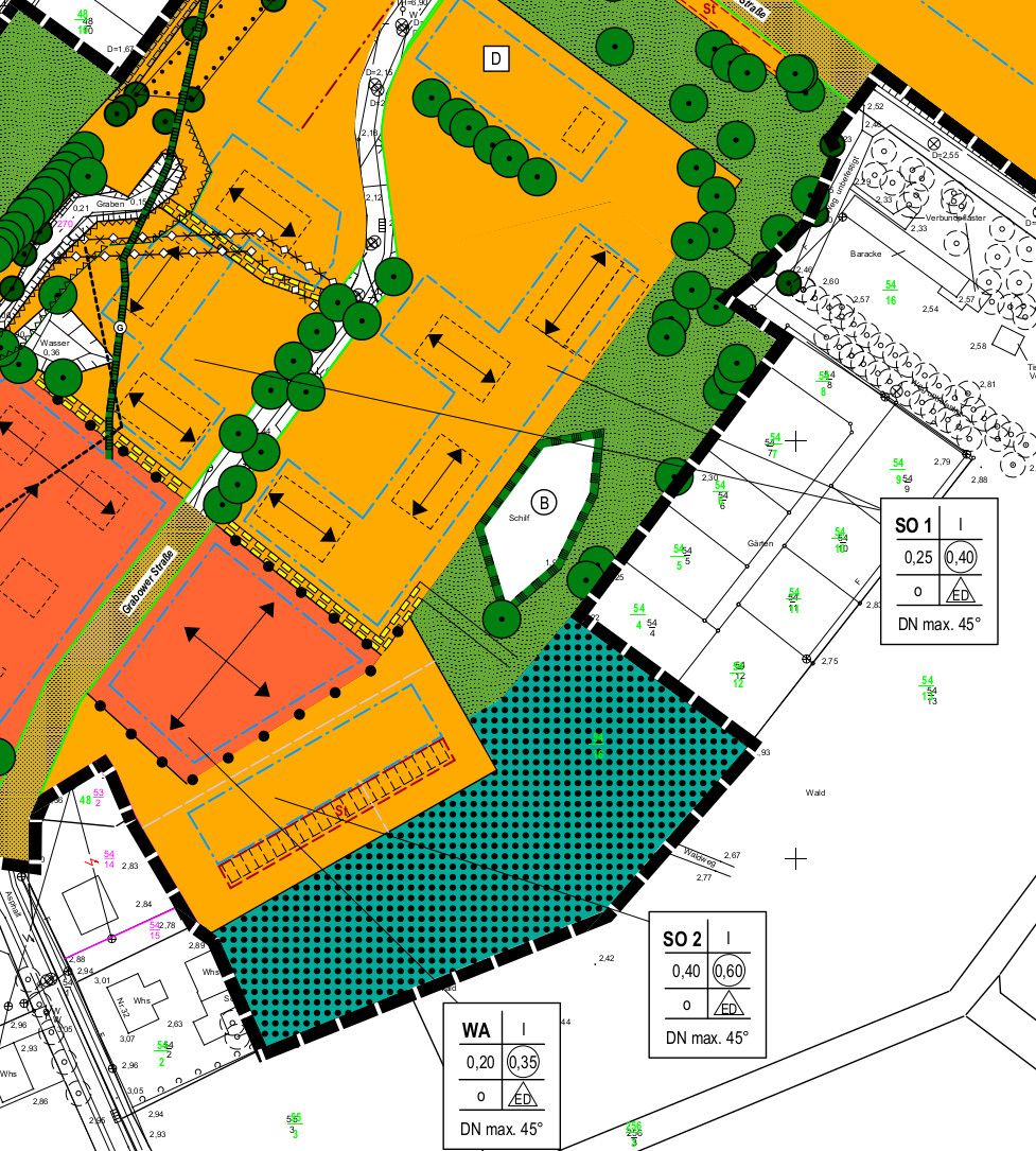
Bebauungsplan

Der aktuelle rechtskräftige Bebauungsplan Nr. 4 "Ortsmitte Nisdorf" wurde im Jahr 2006 erstellt. Er legt die möglichen Bebauungen und die zu beachtenden Auflagen fest.

Somit muss für den Hausbau lediglich eine Bauanzeige beim Amt Altenpleen und ein vollständiger Bauantrag eingereicht werden.

Bei Rückfragen im Bauamt Altenpleen lassen Sie sich bitte alle Aussagen schriftlich geben. In der Vergangenheit wurden leider öfter unrichtige mündliche Aussagen getätigt.

Den Bebauungsplan (B-Plan) können Sie hier als PDF herunterladen.

Nicht wundern: Das Papierformat (1503 * 848 mm) entspricht dem Original.

Wenn Sie nicht den gesamten Plan, sondern nur die textlichen Festsetzungen und Auflagen lesen wollen, dann können Sie diese hier herunterladen.

Ausschnitt aud dem Bebauungsplan Nr 4